Инструкция по монтажу пластиковой модели
Чтобы сэкономить время и получить отличный результат, выбирают модели из модифицированного пластика. Рассмотрим порядок выбора и монтажа современных унитазов.
Шаг #1. Выбор унитаза из пластика
Пластик – сравнительно недорогой, прочный, износостойкий и долговечный материал. Готовый заводской вариант обойдется дороже деревянного стульчака, так как при производстве пластикового унитаза применяется высококачественный ПВХ.
Популярные производители: «Roca», «Cersanit», «Jika», «Славия», «Коломбо». Конструкция уличного туалета из пластика не предусматривает наличия «колена».
Пластиковый уличный унитаз для дачи чаще выбирают прямой, чтобы отходы не задерживались в нем, а сразу попадали в выгребную яму
Садовый унитаз из пластика – это оптимальный вариант для загородного участка, обладающий достоинствами:
- Обширный ассортимент форм и расцветок.
- Привлекательный внешний вид.
- Легкий вес оборудования, не оказывающего значительного давления на пол.
- Повышенная прочность и износостойкость.
- Гигиеничность и удобная эксплуатация.
- Приемлемая стоимость изделий.
Незначительные трудности могут возникнуть при установке унитаза на даче в виде бочки из пластика.
Для монтажа понадобятся дополнительные материалы:
- Лист оцинковки или нержавейки. Служит переходной частью между овальным отверстием унитаза и круглым горлышком бочки.
- Доски. Этот материал понадобится при укладке пола.
Еще потребуется мастика. Она беспечит надежную гидроизоляцию в местах стыковки элементов конструкции.
Шаг #2. Особенности монтажа пластиковых моделей
Существуют различные модели унитазов, изготовленных из пластика. В зависимости от вида изделий отличается и монтаж конструкции. Одним из наиболее простых является садовый пластиковый унитаз, который напоминает формой ведро.
Он выполнен из надежного и прочного пластика, который способен выдержать нагрузку до 150 кг. Верхним элементом изделия является пластиковый стульчак.
Устанавливается пластиковый уличный унитаз на выгребную яму соответствующего размера. У владельца загородного участка могут возникнуть проблемы, если для сбора нечистот используется не яма, а вкопанная в землю бочка.
Дело в том, что пластиковая горловина бочки меньше внутреннего диаметра уличного унитаза. К тому же горловина бочки круглой формы, а выход унитаза – овальной.
Бочку вкапывают в грунт по горловину. Можно вкопать в землю емкость без сужения верхней части, а в нее вставить бочку большого объема
Чтобы соединить горловину бочки и унитаза, можно использовать лист оцинковки или нержавейки, который сворачивается в виде воронки. При этом нижняя часть конуса должна соответствовать диаметру горловины бочки, а верхнюю подгоняют под форму и габариты выхода унитаза. Верхнюю часть конуса разрезают в виде лепестков ромашки, фиксируют к полу строения саморезами.
Места стыков между полом и унитазом из пластика герметизируются автомобильной мастикой или силиконом. Чтобы установка пластикового унитаза на даче выглядела эстетично, конструкция крепится к черновому настилу, а вокруг нее настилают завершающее покрытие.
Установка биотуалета выручает, если нет условий для строительства выгребной ямы под дачный унитаз – например, высокие грунтовые воды
На некоторых моделях садовых унитазов не предусмотрено отверстие для крепления к полу. В данном случае можно изготовить из оцинковки неширокие уголки, с помощью которых фиксируют данное сантехническое оборудование к полу.
Строительство туалета для дачи: чертеж с размерами для конструкции типа «Скворечник»
Конструкция «Скворечника» состоит из древесины, которая может быть ообшита любым другим видом материала. Допускается строительство одно- или двускатной крыши. Данный вид клозета монтируется в качестве надземной постройки над выгребной ямой.
Типовый проект «Скворечника» с размерными параметрами:
| Элемент конструкции | Размер, м |
| Задняя стенка (высота) | 2 |
| Ширина | 1 |
| Передняя стенка (высота) | 2,3 |
| Площадь основания | 1х1 |
При установке конструкции деревянного туалета необходим обязательный контроль размещения поверхностей по вертикали и горизонтали. Для этих целей рекомендуется использовать строительный уровень.
Чертеж туалета «Скворечник»: 1 — обвязка, 2 — стойка, 3 — дверь, 4 — ручка, 5 — поперечина двери, 6 — передняя стенка, 7 — стропила крыши, 8 — кровля, 9 — вентиляционный стояк, 10 — дефлектор, 11 — боковая стенка, 12 — крышка выгребной ямы, 13 — кирпичные опоры, 14 — задняя стенка
Материалы для строительства «Скворечника»
Для проведения работ позаботьтесь о наличии:
- рубероида — в количестве 2 м?;
- бетонного бордюра (2 шт., длина – 2 м) или песчано-цементного блока (4 шт.);
- дверного блока (2000х900 мм);
- песка;
- вагонки (40 шт., 87х3000 мм);
- обрезной доски (4 шт., 50х100х6000 мм; 3 шт., 32х90х6000 мм);
- профильного листа из стали с оцинковкой (2000х1520х0,4 мм);
- деревянного бруса (1 шт., 50х50х600);
- комплектующих к двери (шпингалета, петель, ручки);
- крепежных элементов (саморезов, гвоздей);
- материала для финишного покрытия (лакирующего или красящего состава).
Туалет «Скворечник», фото 1: подготовка материалов и монтаж каркаса
В целях утепления конструкции следует приобрести пенопласт. После окончания строительства каркас обшивается им изнутри. Вы можете выполнить внутреннюю отделку красивыми материалами (по желанию).
Как построить туалет на даче своими руками: поэтапное строительство «Скворечника»
Инструкция к строительству «Скворечника» (пошаговое руководство):
организация выгребной ямы. Минимальный размер резервуара составляет 1х1х2 м. На дне выполняется подушка из щебня или битого кирпича;
Туалет «Скворечник», фото 2: устройство технологического отверстия в полу
- строительство фундаментной части. Для этого бордюр из бетона устанавливается так, чтобы края ямы располагались от него на расстоянии не более 0,2 м. Бордюр будет играть роль перекрытия. Процесс монтажа бордюра предполагает вкапывание таким образом, чтобы бетонное основание возвышалось над уровнем почвы не более чем на 0,1-0,15 м. Если используются песчано-цементные блоки, их следует вкопать по углам. На них в будущем будет установлен весь каркас;
- монтаж рубероида. Материал укладывается поверх основания в 3-4 слоя в качестве изолятора от влаги;
- строительство надземной части (каркаса из дерева), его отделка. В качестве обшивочного материала для каркаса может использоваться деревянная доска или вагонка. Настил для пола делается из толстых досок. Минимальная толщина для напольного покрытия составляет 4 см. Рекомендуется использовать породы дерева, обладающие повышенными прочностными характеристиками. К таким породам относится лиственница, бук, дуб и т.п.
Туалет «Скворечник», фото 3: обшивка внешних стен конструкции
Заключительные работы по созданию «Скворечника»
К заключительным работам относятся следующие этапы:
- формирование отверстия в полу. Форма прорези в этом случае может быть произвольной (круглой, ромбовидной, овальной, в виде сердечка), главное, чтобы диаметр его составлял не менее 30 см;
- монтаж дверной конструкции. Для удобства в полотне двери можно выполнить небольшую прорезь в виде окошка, чтобы солнечный свет мог проникать внутрь каркаса. Это оконце можно оставить свободным или остеклить;
- обустройство кровли. Крыша «Скворечника» может укрываться различными видами материалов. Лучше всего для этих целей подходит асбестоцементный лист, рубероид, профильный лист, изготовленный из стали;
- нанесение финишного слоя. Поверхность изделия следует обработать лакирующим составом или краской. Рекомендуется использовать масляный краситель.
Туалет «Скворечник», фото 4: монтаж вентиляционной трубы и обустройство кровли
При обустройстве туалетов не стоит забывать об организации вентиляции. Достаточно будет даже простейшего варианта. Эта система предназначена для вывода воздуха из ямы с отходами наружу. В качестве материала для изготовления вентиляции может быть использована труба. Минимальный диаметр изделия – 10 см.
Для установки трубы в подиумной части туалета, а также в его крыше выполняются прорези соответствующего диаметра. Труба должна возвышаться над крышей минимум на 0,2 м.
Туалет «Скворечник», фото 5: дачный туалет, построенный своими руками
Фото туалета на даче своими руками
https://youtube.com/watch?v=Ih8g8AgXHSA
https://youtube.com/watch?v=iWMcoCeSLWA
Также рекомендуем просмотреть:
- Мельница своими руками
- Мотоблок своими руками
- Калитка своими руками
- Летний душ своими руками
- Садовые фигуры своими руками
- Качели своими руками
- Садовые дорожки своими руками
- Детская площадка своими руками
- Веранда своими руками
- Сарай своими руками
- Пруд своими руками
- Грядки своими руками
- Курятник своими руками
- Цветник своими руками
- Септик своими руками
- Фонтан своими руками
- Поделки из покрышек своими руками
- Погреб своими руками
- Ловушка для мух своими руками
- Вольер своими руками
- Бассейн своими руками
- Навес своими руками
- Огород своими руками
- Крыльцо своими руками
- Тротуарная плитка своими руками
- Коптильня своими руками
- Детская кроватка своими руками
- Мангал своими руками
- Бочка своими руками
- Гамак своими руками
- Ландшафтный дизайн своими руками
- Клумбы своими руками
- Теплица своими руками
- Альпийская горка своими руками
- Сделать клетку своими руками
- Как украсить двор своими руками
- Полив своими руками
- Поилка своими руками
- Бытовка своими руками
- Удочка своими руками
Выбираем подходящий тип проекта
Для проектирования чертежа нужно определиться с типом туалета. Это может быть сортир с выгребной ямой или без нее. Кроме того, выгребную яму можно использовать с пользой для хозяйства и производить в ней компост.
Постройка с герметичной емкостью вместо выгреба будет уместна на участке, где грунтовые воды располагаются слишком близко к поверхности земли.
№1 — классический дачный туалет с выгребом
Самый распространенный и привычный проект простого туалета для дачи – модель с выгребной ямой. Принцип такой конструкции элементарный: все отходы попадают в глубокую яму, которая располагается непосредственно под туалетной будкой.
Если выгреб заполнился, вызывают ассенизатора, который откачивает все нечистоты, и туалетом можно пользоваться дальше.
Эта схема дачного туалета проверена временем. Основное ее преимущество – яму не нужно обслуживать довольно продолжительное время. Если сортир используют только в дачный сезон, можно и вовсе не столкнуться с необходимостью вызова ассенизатора
Поскольку душ на даче столь же необходим, как и уборная, некоторые пытаются совместить эти два проекта в один.
Если построить летний душ в одной части участка, а туалетный домик – в другой, вам придется изрядно поработать лопатой, ведь сточная яма нужна в обоих случаях.
Объединив удобства, можно значительно сократить трудозатраты на земляные работы и количество необходимых материалов.
№2 — пудр-клозет или сортир без ямы
Простой способ сделать чертеж туалета для дачного участка – спроектировать его по принципу пудр-клозет.
Такой вид сортира не предполагает наличия выгребной ямы, все отходы попадают в резервуар непосредственно под сиденьем унитаза. Это может быть пластиковый или металлический бак или ведро.
Поскольку главная беда подобных туалетов – неприятный запах, нечистоты присыпают (припудривают) адсорбирующими веществами, которые предохраняют уборную от появления специфического «амбре».
В туалетах подобного типа всегда присутствуют две емкости: для сбора отходов и для хранения присыпки. Емкости нужно регулярно очищать
В качестве адсорбента применяют древесную золу, торф, древесные опилки, песок. По большому счету, пудр-клозет с торфом является самодельной вариацией готовых биотуалетов промышленного производства, которые используют тот же торф в качестве наполнителя.
№3 — туалет с компостной ямой
Еще один вариант, идеально подходящий для дачного участка, – туалет, производящий компост. Как известно, компост – прекрасное органическое удобрение для растений.
Натуральное удобрение никогда не будет лишним, а специальная технология позволяет производить его ускоренными темпами практически из ничего.
Чтобы компост насыщался кислородом, его нужно регулярно рыхлить. Для этого предусматривается специальный рычаг для ручного перемешивания
Сортир оснащают компостной ямой. Лучше, если их будет две, так можно будет поочередно использовать каждую из них, пока компост созревает.
Ямы конструируются таким образом, чтобы можно было без труда извлекать готовое удобрение. Такой дополнительный функционал придется по душе тем, кто беспокоится об экологии.
Варианты конструкции наземной части
Дачный туалет
Туалет на даче может по желанию владельца выглядеть как:
1
Скворечник. Деревянная постройка с односторонней покатой крышей. Самая простая и дешёвая конструкция, которая не обеспечивает уровень комфорта
Конструкция «Скворечник»
2
Теремок (избушка). Строение с двумя острыми скатами крыши, которое хорошо теплоизолировано за счёт своей необычной формы
«Теремок»
3
Треугольник (шалаш). Одна из самых распространённых форм, с высокой влагоустойчивостью благодаря двускатной крыше. Такому строению не страшны даже сильные порывы ветра
«Шалаш»
4
Домик. Комфортный вариант, где достаточно места для человека. Отличается повышенной прочностью
«Домик»
Популярны и довольно необычные конструкционные решения в виде двухместной санитарной постройки либо санузла, совмещённого с уличным душем.
Санузел, совмещённый с душем
Выбор наземной части туалета зависит от нескольких параметров:
- вес постройки (не должна быть тяжёлой, чтобы грунт не просел и не провалился)
- укрепление фундамента
- предполагаемая частота использования
- материал для строительства (лучше всего подходят дерево, пластик, профнастил)
- наличия готовой схемы постройки либо возможности её изготовления
- финансовая возможность обслуживания и чистки
Двухместный туалет
Стандартные размеры туалетного строения, в котором человеку удобно находиться и стоя, и сидя:
- Высота 2,2–2,3 м
- Ширина – 1–1,2 м
- Глубина – 1,4 м
Строительство гаража своими руками: подробно о каждом из этапов. Описание, пошаговая инструкция, чертежи кровли, смотровой ямы, внутреннее обустройство (75 Фото & Видео) +Отзывы
Биосептики для выгребных ям
Биосептики засыпают прямо в отверстие выгребной ямы
Чтобы нивелировать слабые места выгребных ям, были разработаны биологические составы для обеззараживания органических отходов. Принцип их действия аналогичен тем средствам, которые используются в биотуалетах.
Продукты содержат живые бактерии, которые естественным путём перерабатывают органику, устраняя неприятный запах и устраняя необходимость частой выкачки нечистот.
Бактерии в составе биосептиков способствуют разложению органических отходов
Летний душ на даче своими руками: пошаговая инструкция строительства и обустройства | (30 Фото & Видео)
Выбор материала для постройки
Чертёж по сборке самой простой конструкции «Скворечник»
Наземную часть выполняют из:
- дерева
- металла
- кирпича
- бетона
- ДВП
- шифера
Оптимальным считается решение строить из древесины. Материал стоит дёшево, конструкция возводится быстро, для этого не нужны серьёзные строительные навыки.
Строение из вагонки либо досок мобильно: его можно переносить со старого места на новую выгребную яму. К недостаткам относят легковоспламеняемость дерева, подверженность воздействию влаги и плесени.
Металлические домики встречаются реже: для их возведения нужно иметь опыт сварки металлопрофиля. Однако готовая постройка надёжная, быстро изготавливается. Единственный минус – сильно нагревается на солнце.
Кирпичные туалеты – монументальные, перенести их не удастся. Конструкция из кирпича тяжёлая, поэтому над выгребной ямой делают фундамент ленточного типа.
Сарай: устройство с фундаментом и без, поэтапная инструкция как построить своими руками (50+ Фото & Видео) +Отзывы
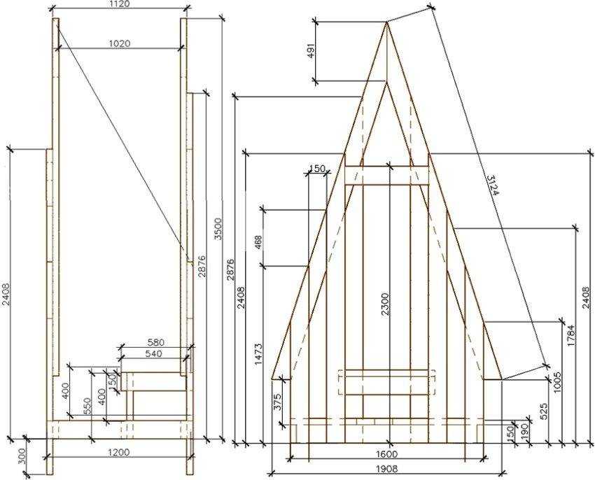
На основании чертежей строим туалет на даче своими руками по типу «Шалаш»
Надземная конструкция «Шалаш» имеет более сложное строение, чем у «Скворечника». Но все труды, потраченные на ее строительство, оправдывают себя, ведь в конечном итоге вы получаете эффектный внешний вид туалета.
Многие дачники выполняют стилизацию такой конструкции под сказочный домик. Благодаря этому на участках можно встретить очень интересные варианты оформления. Для вдохновения можно использовать фото туалетов для дачи своими руками, которых немало в сети интернет.
Строительство такого объекта как «Шалаш» начинается с формирования выгребной ямы. Размерные параметры могут быть взяты из предыдущего типового проекта. В зоне размещения углов ямы следует сделать углубления. В них будут помещены бетонные блоки
Очень важно при этом соблюсти точную геометрию. Чтобы конструкция получилась прямоугольной, необходимо измерять расстояние между бетонными блоками. Не забывайте проверять основание по диагоналям
Они также требуют измерения и должны в конечном итоге получиться одинаковыми
Не забывайте проверять основание по диагоналям. Они также требуют измерения и должны в конечном итоге получиться одинаковыми.

Туалет «Шалаш», рисунок 1: чертеж с размерами, вид сбоку и спереди
Согласно этой простой инструкции можно без проблем выполнить монтаж туалета на основании подготовленных чертежей.
Поэтапное строительство:
монтаж фундаментного основания на изолирующий от влаги материал. Достаточно воспользоваться рубероидом, который предназначен как раз для этих целей. Укладка материала осуществляется в несколько слоев. 2-3 прослоек будет достаточно;

Туалет «Шалаш», рисунок 2: передняя стенка
- сборка нижней части каркаса. Для этого используется брус с сечением 50х50 мм. Размер основания составляет 1х1 м. Заколачивание делается с помощью обрезных досок. Эта своеобразная опалубка покрывается настилом из половых досок;
- изготовление технологического отверстия. В днище выполняется прорезь любой понравившейся формы. Здесь действуют такие же размерные ограничения, как и в случае со «Скворечником»;
- обработка деревянного основания антисептическими средствами. Нужно со всех сторон нанести на поверхность основания антисептическое средство. При выполнении туалета своими руками руководствуйтесь инструкцией, чтобы удостовериться в том, что все выполняемые вами действия верны;
- сборка задней и передней частей каркаса. Для выполнения этого этапа используйте чертежи, которые у вас имеются, или эскизы. Подойдут даже фото, взятые из сети, если вы достаточно хорошо разбираетесь в размерах и обладаете навыками в обращении с древесиной.

Туалет «Шалаш», рисунок 3: задняя стенка
Заключительные этапы строительства «Шалаша»
На заключительных этапах строительства выполняется установка всех деталей и доработка каркаса. Дальнейшая работа выглядит следующим образом:
- отделка деталей «Шалаша». Задняя и передняя стенки с внутренней части отделываются вагонкой;
- монтаж передней и задней стенок. Эти детали устанавливаются на пол и скрепляются с помощью обрезков, оставшихся от работы с досками;
- монтаж деревянной обрешетки из досок. После изготовления этого элемента выполняется его обшивка;
- организация крыши. С помощью досок, длина которых должна быть не меньше 1,8 м выполняется кровля для «Шалаша». Для этого материал следует упереть на заднюю и переднюю части конструкции и зафиксировать его крепежными элементами на деревянных рейках. В результате получится крыша;
- укладка кровельного материала;

Туалет «Шалаш», рисунок 4: каркас, обшивка пола и помоста
- монтаж конька (элемент крыши). Коньковую часть кровли можно украсить фигуркой, выполненной из древесины. Она позволит создать единый стиль оформления;
- установка дверной конструкции. Перед монтажом двери следует заранее закрепить на ней ручку и крючок. С наружной стороны можно прибить ветряную вертушку, имеющую произвольную форму;
- нанесение заключительной отделки. Древесину следует покрыть лакирующим или красящим составом на масляной основе.
Этот вариант туалета на приусадебном участке позволяет разгуляться фантазии и не налагает существенных ограничений в отношении дизайна. Используйте многочисленные фото и видео материалы для того, чтобы найти интересные идеи для своего сказочного домика.

Туалет «Шалаш», рисунок 5: внешняя обшивка


















































